发布时间:2015-12-04 10:02 我来说说 我要投稿
搜狐(SOHU.COM)17周岁了,正一步步迈向成年,而我们的设计师大赛正经历12岁这个多彩的花季。
眼下,中国设计界百花齐放、名家辈出,在这种兼容并蓄的环境里,新一代设计师在快速地成长,他们当中不乏成熟且优秀的设计团队。搜狐作为中国代表性网络媒体,自认有责任发现设计圈中朝气蓬勃的新生力量。庆幸的是,我们就有发现美的眼睛!
在西南赛区的PK中,一个优秀的年轻设计团队通过他们耀眼的作品在银河系中脱颖而出。他们说这是Archetype元太设计团队努力合作的结果,是整个团队的荣誉。
于是乎,有颜值、有实力、有腔调的年轻设计师——廖晋南代表整个团队来到了我们的舞台上。

28岁的廖晋南,于一个偶然的机会,在咖啡厅认识了现在的合伙人,于是促成了最后的组合——Archetype元太设计。

Archetype元太设计团队

合伙人 廖晋南&李维伦
这是他和合伙人以及整个团队参赛的第一个作品《趣味》,成功晋级分赛区十强。

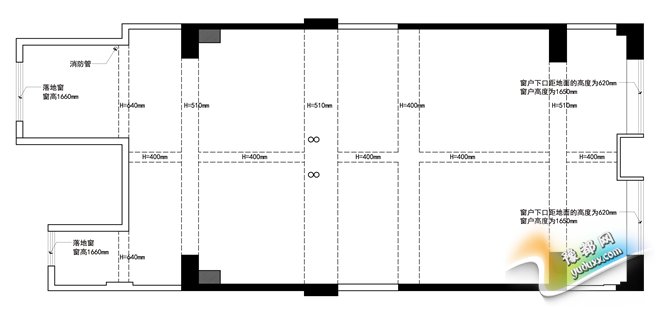
原始平面图

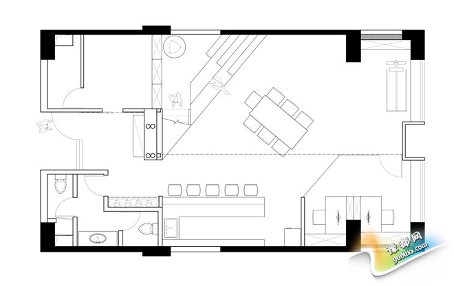
平面布局图

《趣味》实景图

《趣味》实景图

《趣味》实景图

《趣味》实景图

《趣味》实景图

《趣味》实景图

《趣味》实景图

《趣味》实景图
分赛区决赛中,导师张灿、赖旭东、谢柯、毛继军、王峰的命题作业是一个200平米空间的去风格化作品。
下面就是廖晋南和他的团队一起完成的第一轮命题作品,成功问鼎NO.1。
《静》
面积:210平米的loft空间
性质:纪实家庭影像工作室(满足八人左右办公+两间带有卫生间的卧室)
功能:工作、分享、居住
一茶、一书、一知己,这是业主眼中的生活。设计师将空间、灯光、材质、软装,甚至闲适而怡人的音乐气味都融合在设计中,讲述一种生活方式,一种生活态度。

《静》原始结构图1F

《静》原始结构图2F

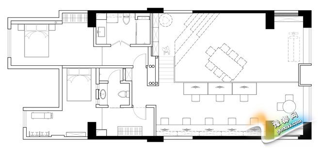
1F平面布置图

2F平面布置图

效果图

效果图
12月5日,廖晋南即将代表成都设计新力量参加广州设计周的终极PK。

廖晋南(左)、张灿(右)摄于成都总决赛
他说在他的设计中不需要很多昂贵的材料去装饰设计,他说他们团队想创造的是“we live differently”,他还说元太设计不是最奢华、不是最高端,但一定是最站在客户立场,最代表人们对设计的理解。

生活中的廖晋南,动静皆宜,热爱运动和音乐。他说他要过着想过的生活,做着钟爱的设计,在安静的地方、怡然自得的时候思考生活抑或设计,同时也要有更多的时间去陪伴家人与挚友,在旅途中欣赏各种美的存在!
【快问快答】
A:你最喜欢的读书的类型?
Q:人物传记和前沿设计类书籍。
A:你有最喜欢的设计师吗?
Q:史蒂夫·乔布斯 Steve Jobs。
A:一生中给你帮助最大的人是谁?
Q:我的两位合伙人。
A:如果不做设计师,你会选择什么职业?
Q:没有第二选择。
A:你认为你是一个称职的设计师吗?
Q:从客户反馈来看算是基本称职,但与自我要求的理想状态相比还有提升的空间。
A:设计师工作给你最大的满足感和失落感是什么?
Q:我的设计能够完美的呈现;设计不被尊重。
A:希望自己作品给大家怎样的印象?
Q:恰到好处的设计。
A:最希望做一个什么样的项目?
Q:融合居住、设计、艺术、文化、交流的一个设计集合空间。
A:未来的工作打算?
Q:与我的团队一起为共同的设计理想而奋斗,希望通过我们的努力能渐渐改变行业现状。
《设计新生代 | 高颜值实力派 Archetype元太设计》由河南新闻网-豫都网提供,转载请注明出处:http://jiaju.yuduxx.com/hydt/283896.html,谢谢合作!
豫都网版权与免责声明
1、未经豫都网(以下简称本网)许可,任何人不得非法使用本网自有版权作品。
2、本网转载其他媒体之稿件,以及由用户发表上传的作品,不代表本网赞同其观点和对其真实性负责。
3、如因作品版权和其它问题可联系本网,本网确认后将在24小时内移除相关争议内容。