发布时间:2020-04-16 09:21 我要投稿
2018年1月19日,第四届中法国际设计交流展暨法国双面神“GPDP AWARD”国际设计大奖颁奖盛典在法国巴黎瓦格兰大街47设计艺术中心成功举办。法国双面神“GPDP AWARD”国际设计大奖是由法国设计学院授权,专门针对各行业优秀设计师设立的奖项,作为世界三大工业设计奖项之一,被誉为设计界的“奥斯卡”奖。

出席本次颁奖盛典的国际评审有:法国“双面神”国际设计大奖评审团主席及法国设计学院主席Anne-Marie Sargueil女士、法国设计学院副主席/法国著名室内建筑设计师Michel Sanlaville、法国香奈儿品牌设计总监-Olivier Bragard、法国室内家居设计协会主席-Odile Duchenne、法国ILOT广告出版智库主席-Jacques Mandorla、法国著名室内建筑设计师-Stephane Quigna。

法国设计学院主席Anne-Marie Sargueil女士
国际专业设计评审团对入选参展设计作品进行了综合评审,最终评出各项专业类荣获金奖、银奖、国际创新奖、提名奖的获奖设计作品,并为荣获本届法国双面神“GPDP AWARD” 国际设计大奖的设计师及设计机构颁发了获奖证书及奖杯。

金奖奖杯
中国设计师程晖作品《穿越时空》喜获家居住宅空间类金奖,程晖先生同时也荣获了2017年度TOP100最具国际影响力创新设计师大奖,法国设计学院主席Anne-Marie Sargueil女士和国际评委团对本届的获奖设计作品给予了极高的评价和肯定,对中国设计师的设计创新能力和文化底蕴给予很高的评价。

获奖证书
程晖先生因故未能到场领奖,特别委托主办方工作人员表达谢意,对法国设计学院国际评审团主席Anne-Marie Sargueil女士及国际评审团对自己获奖设计作品的肯定表示感谢,希望今后能有更多机会参加中法两国设计行业间的交流与合作,更好的促进和引领中国文化创意产业及设计行业的全球化的发展。
程晖获奖作品《穿越时空》
项目位置:北京
项目类型:公寓
项目面积:156㎡
设计师:程晖
摄影师:崔巍
设计机构:唯木空间设计
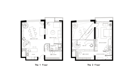
本案是一个隐藏于繁华都市中的普通loft公寓,设计师拆掉了二层的楼板,一架玻璃天桥腾空而过;所有多余的墙体全被拆除,卧室和卫生间也全部开放,采光和空间得到了很大的提升;整个空间以静谧的黑色为主基调,明黄色的点缀有很强的视觉冲击。
设计师把诸多艺术品、中式家具、黄铜古董床、北欧老柜子、翻新的老柚木地板、现代的设计单品进行了混搭。 Vintage、现代、复古、摩登等元素恰到好处的搭配在一起,创造出了许多不同的情绪,一个有趣且独特的空间。
原来的厨房墙体被打掉,和活动区并置在一个开放空间,黑色的大理石台面配上kartell的彩色凳子,形成一个宽大的吧台,一盏美式复古的吊灯格外抢眼,吧台底部用铁板制成,等待时光的锈蚀。


设计师在颜色的运用上给了他们极大的惊喜,大面积的黑色并没有感到压抑,饱和度极高的蓝色、绿色、黄色和红色点缀着空间,和主人夫妇最喜欢的英国艺术大卫?霍克尼(David Hockney)的擅长的色彩不谋而合。

最大的惊喜来自头上这架腾空而过的透明玻璃天桥,营造出一种魔幻的穿越时空的感觉。一张集工作,会客,娱乐为一体的多功能餐桌占据了整个活动区,椅子则是业主的各式收藏。天桥下面的明黄色圆洞将起居室和挑空区相连结,明式香蕉腿有束腰榻来自万乾堂,奥地利设计师Florian Puche的大地地毯给空间带来自然的生机。

起居室一件古董铁艺床成为亮点,这种打破常规的布置方式灵感来自梵高的卧室,透过窗洞看过去,宛若一幅油画。

窗前的几许阳光洒入,一把桑纳14号椅,斑驳的木马,近百年的欧洲胡桃木立柜,时间在这里凝结。

一层的挑高空间,艺术家秦铃森的巨幅画作《列宁》置于正中,显得很有气势。下面是刁伟的雕塑作品《西装马》。一个玫瑰木的北欧古董边柜和棕色沙发为整个空间带来了温馨的感觉。

进门从天花到地面黑色将最大限度地填充了整个空间,静谧的黑色为主基调,翻新的柚木老地板,给整个空间增添了几分岁月的痕迹。右侧的限量款明式圈椅同样来自万乾堂。

精心挑选的复古纯铜拨片开关彰显细节。

起居室的墙面设计成了弧形,一尊北魏的佛像静立在此。

起居室左侧油画是艺术家刘冰作品《On the Way》,另一面墙上挂着毕加索的蚀版画《Trois Vieux Copains en Visite》,黄色Magis陀螺椅成为空间的焦点。

卫生间的水泥墙面配上黑白马赛克,没那么清楚的古董镜,斑驳的民国时期洋行的绿色木门,一切都这么穿越。

旋转楼梯简洁有力,如雕塑一般。

拾阶而上,楼梯比例完美。

青年艺术家邬建安的作品《睁眼闭眼》,搭配柚木老地板的厚重质感,左侧的旧罗马柱拆自主人上一套房子。

现代的玻璃天桥和古董吊灯构成奇特的气质。

开放式书房安置在二层平台处,书桌来自梵几,书柜是现场用钢板制成,和墙面完美融合,左侧一架玻璃天桥通往卧室。卧室门也是民国的旧物。

设计师将二层整个打通,卧室和卫生间的空间一下子变得开阔了许多。中式木箱和来自印度的古董高架床,右侧的条案是明早期的古董。各种元素完美混搭。

卫浴家居化的理念贯穿整个设计,开放式的卫生间增大了空间面积,让生活丰富起来,墙上的油画是王中军的作品。白色门后面分别是衣帽间和马桶洗浴区。

浴缸里泡一泡,是都市人最享受的好时光,陶瓷吊灯来自欧洲的老教堂。

静谧的炭黑色墙面,古董床和复古浴缸,暖暖的灯光,床头灯来自设计师品牌《年轮公园》。

ArtDeco风格的盥洗台是专程定制的,搭配主人收藏的古董镜,自成美景。

繁忙的都市中,人们特别想穿越,回到从前,从前静谧的时光,我想这所房子做到了。
原始平面图:

平面布置图:


程晖
高级室内建筑师
减法生活方式-倡导者
唯木空间设计创始人/设计总监
全国杰出青年室内建筑师、中国建筑装饰协会设计委员会委员;
为多位艺术家、企业家、明星等社会名流设计过私人别墅,设计作品曾多次获奖并在AD、ELLEDECO等国际期刊发表,近年来投身“设计为民生”公益活动,为普通民众改善家居环境提供服务。
获奖经历:
2017年受邀参加意大利SMEG冰箱国际设计邀请赛获得金质三叶奖
2017年受邀参加北京理工大学TEDxBIT主题演讲
2017年获陈设中国.晶麒麟奖-公益设计大奖
2016年受邀录制BTV“暖暖的新家”公益设计改造节目
2016荣获喜舍杯中国地产设计总评榜最佳设计研发奖
2015年受邀在中央美术学院建筑学院做专题讲座
2015年中国装饰设计(年度人物)年度新锐设计师
2010年获得全国杰出青年室内建筑师称号
(本文属企业供稿,仅传递信息,不代表凤凰网家居/凤凰网观点。)
《设计师程晖荣获法国双面神“GPDP AWARD”国际设计大奖家居住宅空间类唯一金奖》由河南新闻网-豫都网提供,转载请注明出处:http://jiaju.yuduxx.com/zxrd/819688.html,谢谢合作!
豫都网版权与免责声明
1、未经豫都网(以下简称本网)许可,任何人不得非法使用本网自有版权作品。
2、本网转载其他媒体之稿件,以及由用户发表上传的作品,不代表本网赞同其观点和对其真实性负责。
3、如因作品版权和其它问题可联系本网,本网确认后将在24小时内移除相关争议内容。