发布时间:2018-11-25 08:42 我要投稿
她前半生照料老公,后半生照顾儿子;他弱冠之年遭遇打击,而立之年直视未来。家族的遗传病为他们的生活蒙上一层阴影,面对着必然的宿命,坚强的母子选择直面逆境。看“安居空间追究求者”、“设计神之手”本间贵史如何改造房子,撑起他们的半边天。

本期故事
地点:江苏省启东市南苑新村
委托人:母子郁莹莹和李海臻。27岁的李海臻患有家族遗传病,终将失去生活自理能力。
改造需求:这一次是为了患有“遗传性共济失调症”的儿子和照料他的母亲而进行的改造。对于他们将来的生活,急需打造一个安全,能够保证将来儿子安全,减轻自己照料负担的家。除了需要将李海臻与母亲目前的居家需求考虑进设计规划,还要将未来他病情恶化,母亲年迈时的特殊需求也融入其中。
情感诉求:27岁的儿子从小学习优秀,却在大学毕业前发现自己遗传了爸爸的家族疾病——遗传性共济失调症。当初自己看着爸爸从尚能自理,到最后瘫倒在床,无时无刻需要人照顾的情形,如今这样的命运却要在自己的身上重演,但母子二人还是选择了坚强面对。
本期设计师

本间贵史:日本一级建筑士、一级建筑施工管理技士,JIA(Japan Registered Architect)登录建筑家,统括设计专业建筑士,教育研究专业建筑士,日本CM协会认定工程经理,东北文化学园大学客员教授。
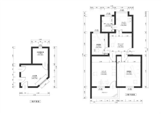
改造前
关键词:安全性和功能性不足、行动不便、阴暗潮湿

委托人的家是一个使用面积为46平方米的两居室,同时还有一个面积为4平方米不到的自行车库。
2009年,19岁的李海臻病状逐渐显现。2012年,大学毕业的李海臻虽然身体已经出现了明显的症状。父亲去世后,如今他身上的病情开始越来越严重,为了延缓自己的病情,每天李海臻都会在这阴暗不安全的房子里面进行长达4小时的复健。





老化的墙面、突然掉落的瓷砖与需要叠两层凳子才能取到被褥的吊柜,危机四伏,让他步步惊心。洗衣机、落水管、门把手、台盆边缘,这些对于李海臻来说,都是在屋内行动、上厕所过程中必不可少的“扶手”。


厨房的正下方是面积为4平方米的自行车库。由于病情的缘故,爸爸最后的两年时光就是在这个阴冷潮湿的地下车库里度过的。


改造后
第一个明确的设计需求即在家中安装“独立电梯”。本间贵史表示“电梯是李海臻未来能否出门的关键”。在节目组的不懈努力下,拿到了整幢楼24户邻居的同意书,同意施工团队将原本一楼的委托人一家4㎡自行车库与二楼正上方厨房空间打通,进行电梯安装。



打通原先的三居室模式,将儿子和母亲的卧室设计在同一个完整的大空间里,并用移门和隔音帘进行阻断,以便达成良好的隔音效果。


厨房里方便的“一键化”设备,感应式龙头、嵌入式冰箱、一体化的垃圾桶也充分满足了李海臻的便捷生活。



如今被扩大至9㎡的卫生间,不仅做到了干湿分离,更是按照不同功能划分了具体的区域,智能一体化的坐便器、坐着轮椅也能使用的洗漱台、可折叠扶手等人性化设计。 两侧出水花洒设计,即使是行动不便的委托人小李,也能独自完成洗澡这个步骤。



新卧室与阳台相连,在享受大面积空间的同时又能沐浴到窗外的阳光。


特别定制的护理床,不仅能在四周装上防护围栏,还能根据需要进行各个部分的角度调节。家中装有的多功能扶手,更能配合李海臻进行一系列的复健锻炼。
暖心设计中还有一项重大的改造,那就是安装在屋顶的“天花导轨”。



本间贵史表示,这个特殊的设计是“未来五年、十年、甚至是二十年,李海臻都可以安全依靠的屋内代步工具。”即使今后到了无法下床的病况,李海臻在没人帮忙的情况下也能前往屋内的每一个角落,也不用再像已逝的父亲那样,过着在厕所里待一整天的生活了。

窗台

床边的扶手、工具

餐桌

电梯里的操作台
最终,节目组归还了郁大姐十万元改造费用。我们希望能尽可能的为郁大姐减轻将来照顾儿子的负担。设计师还为李海臻建立了一个可以销售他画作的平台,“生病的你依然可以靠自己的双手去创造未来。“设计师对李海臻说。

感谢设计带来的满满温情,也希望这对逆境中的坚强母子能够迎接“心的曙光”。
《梦想改造家 | 对抗病魔母子直面逆境,无微不至设计师打造爱心之家》由河南新闻网-豫都网提供,转载请注明出处:http://jiaju.yuduxx.com/zxrd/776535.html,谢谢合作!
豫都网版权与免责声明
1、未经豫都网(以下简称本网)许可,任何人不得非法使用本网自有版权作品。
2、本网转载其他媒体之稿件,以及由用户发表上传的作品,不代表本网赞同其观点和对其真实性负责。
3、如因作品版权和其它问题可联系本网,本网确认后将在24小时内移除相关争议内容。