发布时间:2016-07-24 11:04 我来说说 我要投稿
当下,我们每天听到最多的词汇是“互联网+”,“O2O”,不断转换思维,用移动新媒体的方式在思考模式的创新。我们的时代,几乎用“无所不能”、“Nothing is impossible”来感叹每天急速的变化,让城市里的每一个人都能享受自己所选择的生活方式与文化归属。
绿地集团未来户型创意征集大赛,由Designwire设计腕儿、绿地集团总部技术管理与产品研发部主办,集艾文创、绿地集团武汉房地产事业部协办,这是一场实战型的竞赛,更是一场对设计不同角度的对话,对行业现状和发展趋势的思考。自2015年举办三季以来,共得到了4000余位设计师的参与,在室内设计行业引起极大反响!

本季大赛,选取7套户型进行平面图规划(室内只有柱,没有结构墙)。你可以无限设定购买人群,呈现不同的生活场景,也许是单身贵族、也许是二人世界、也许是你自己的理想的家......大赛旨在挖掘中国本土出色的设计创意,让设计的价值、个性、思想得以最大程度的凸显。获奖者将有机会参与绿地集团在全球的设计项目,并受邀加入绿地集团战略合作体系。
设计题材
•户型题材:绿地国际理想城项目洋房标准层1个(174平)、小高层1个(134平)、高层户型5个(97/105/121/132/143平米);
•结构限制:户型为框架结构,所有柱体、管井位置、尺寸、方向不可改变;
•设计要求:针对不同购买人群,设计符合某种居住结构平面方案,不同的平面要能体现不同的生活场景。
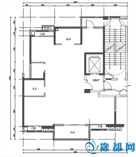
1、洋房顶层174平米户型
难度系数:★★★★★

复式1层

复式2层
2、小高层134平米户型
难度系数:★★★★

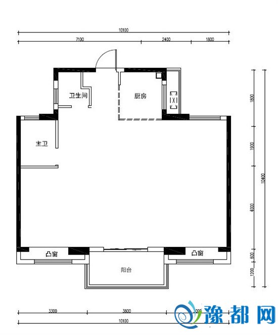
3、高层97平米户型
难度系数:★★★

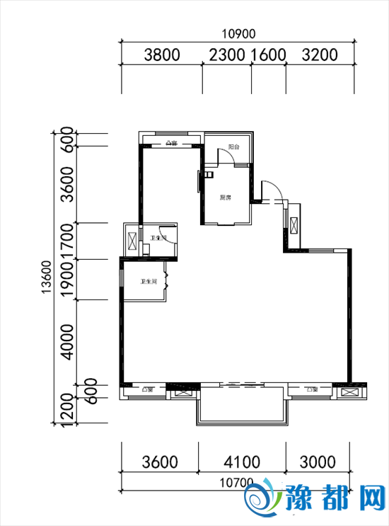
4、高层105平米户型
难度系数:★★★

5、高层121平米户型
难度系数:★★★

6、高层132平米户型
难度系数:★★★

7、高层142平米户型
难度系数:★★★

参赛资格
•建筑设计、装修设计、房地产从业人士、专业院校师生等等企业或个人;
•对绿地国际理想城“百变家”户型感兴趣的普通个人;
•确保其作品的唯一作者和原创,数量不限。
赛事评审
大赛由绿地集团总部景观与室内设计中心,绿地集团武汉事业部技术部、营销部,专业设计师评审团及Designwire媒体联合评选。
奖项设置
一等奖7名:
1名,15,000元/174平米(洋房顶层)
1名,15,000元/134平米(小高层)
1名,10,000元/97平米
1名,10,000元/105平米
1名,10,000元/121平米
1名,10,000元/132平米
1名,10,000元/142平米
二等奖7名:
1名,8,000元/174平米(洋房顶层)
1名,8,000元/134平米(小高层)
1名,5,000元/97平米
1名,5,000元/105平米
1名,5,000元/121平米
1名,5,000元/132平米
1名,5,000元/142平米
三等奖7名:
1名,5,000元/174平米(洋房顶层)
1名,5,000元/134平米(小高层)
1名,3,000元/97平米
1名,3,000元/105平米
1名,3,000元/121平米
1名,3,000元/132平米
1名,3,000元/142平米
除奖金外,更有价值的奖项设置:
1-优胜奖作品将获得全国宣传推广及获奖展示;
2-获奖者将有机会参与绿地集团在各城市的设计项目
(涵盖中国29个省市自治区80城,及海外4大洲10国);
3-获奖者企业将列入绿地集团战略合作体系;
4-30余家媒体以微信、网站等形式全方位传播;
5-学生除奖金外,推荐知名设计事务所实习。
时间安排
报名/提交:2016年7月4日--7月30日
35强评选:2016年7月31日--8月8日
决赛投票:2016年8月8日--2016年8月10日
获奖公布:2016年8月11日
(注:35强为每个户型各选出5个优秀作品,最终决赛获奖名单为各户型一、二、三等奖各1名,综合评委评分及网络投票结果5进3)
作品要求
提交清晰平面图和功能布局分析图(PDF或JPG格式/各一张及以上)并提供文字说明;
•图片质量不低于72dpi,如提供更多图纸数量、文字概述,甚至视频可由自己自由发挥;
•清晰且完整的户型设计草图也可参赛;
•作品于2016年7月30日前提交至era@designwire.com.cn,并附上姓名/公司/职位/电话/邮箱(未附信息者作品提交无效)。
交图示范

报名方式
任选
1、网站在线报名
2、扫描二维码,输入联系方式即可报名

关注公众号:designwire 回复“报名/联系方式”
赛事咨询TEL:010-68391213 / QQ群:228473980 / 邮箱:Echogao@designwire.com.cn
平面图咨询TEL:刘丹女士18717122067
更多有奖竞赛和机会将陆续发布

绿地集团是中国第一家也是目前唯一一家跻身世界500强以房地产为主业的企业集团,项目遍及全国29个省市自治区和80余个城市,紧跟经济全球化趋势,推进海外拓展步伐,目前已成功进入美国、加拿大、英国等4大洲9国13城,已成为中国房地产行业的全球经济化经营领跑者。
来源:设计腕儿
(实习编辑:廖筠卿)
《第四季绿地集团未来户型创意征集大赛启动》由河南新闻网-豫都网提供,转载请注明出处:http://jiaju.yuduxx.com/zxrd/437913.html,谢谢合作!
豫都网版权与免责声明
1、未经豫都网(以下简称本网)许可,任何人不得非法使用本网自有版权作品。
2、本网转载其他媒体之稿件,以及由用户发表上传的作品,不代表本网赞同其观点和对其真实性负责。
3、如因作品版权和其它问题可联系本网,本网确认后将在24小时内移除相关争议内容。