发布时间:2016-05-18 09:40 我来说说 我要投稿
毫无疑问简约风装修是现在很流行的装修风格,很多业主喜欢简约风装修的精美时尚和简约大气,很少有装修风格这么广泛的受到广大业主的喜爱,但是并不是只有现代简约或者简欧风格能够打造出来这种简单优雅的小屋哦~今天小编就收集了3款精美实惠的简约风装修案例,有任性组合的混搭风格,也有气质高雅的新中式风格,但是它们都使用了当下流行的简约装扮,一定会给你的新家装修带来不一样的风采。3套65㎡装修实例,小户型室内神布局!
设计风格:混搭风格
预算说明:全包6万,含主材。
业主需求:业主是一位喜欢中式但又偏爱现代简约的时尚青年。要求时尚新颖,独特,符合生活需求!
设计理念:根据业主的喜好设计师有了这样的一个独特的设计方案。客厅是最能体现风格特点的地方,现代时尚的布衣沙发与中式的实木椅形成和谐的搭配,咖啡色的电视背景木纹屏风,体现中式圆满的意念,加上与之呼应的线帘和雕花玻璃,将两种完全不同的风格混搭成别一番滋味。此房面积小但麻雀虽小五脏俱全,该有都能满足。

DBC加州小镇C区-一居室-65.00平米-客厅装修效果图

DBC加州小镇C区-一居室-65.00平米-客厅装修效果图

DBC加州小镇C区-一居室-65.00平米-卧室装修效果图

DBC加州小镇C区-一居室-65.00平米-卧室装修效果图

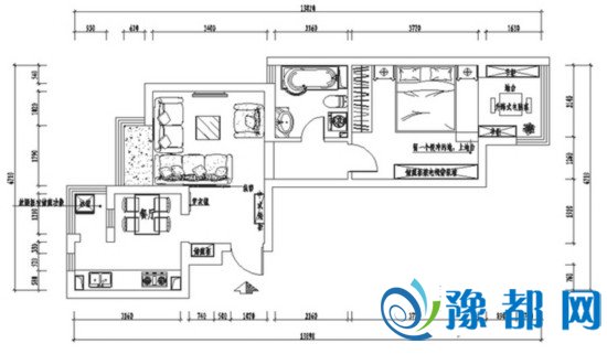
DBC加州小镇C区-一居室-65.00平米-户型图装修效果图
【1】【2】【3】
《3套65平米小户型装修效果图混搭风简约新中式全都有》由河南新闻网-豫都网提供,转载请注明出处:http://jiaju.yuduxx.com/news/397043.html,谢谢合作!
豫都网版权与免责声明
1、未经豫都网(以下简称本网)许可,任何人不得非法使用本网自有版权作品。
2、本网转载其他媒体之稿件,以及由用户发表上传的作品,不代表本网赞同其观点和对其真实性负责。
3、如因作品版权和其它问题可联系本网,本网确认后将在24小时内移除相关争议内容。